The Somersault
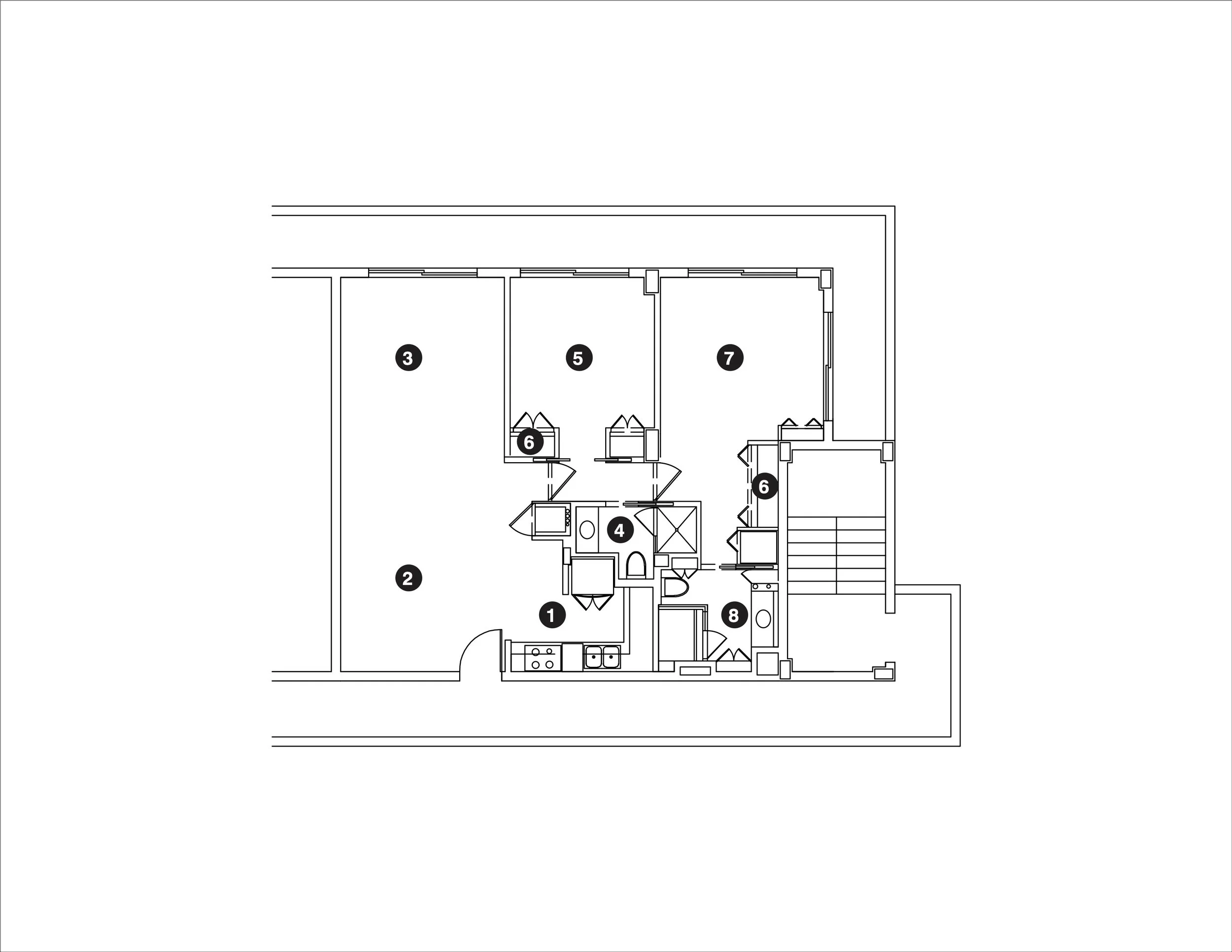
This unit on the A line also involved relocating the kitchen but this time from behind the existing elevator shaft to the shared wall of the adjacent unit. The master bathroom was relocated from the corner of the unit to where kitchen was, formerly. Opening the kitchen to living room/dining room isn’t for everyone but this galley style increased storage and maneuvering space for the home Chef.
So whether you need us to perform architectural gymnastics or just want to update your home to make it more comfortable for the new work-from-home reality, reachout to us via phone or email and let’s discuss your needs. info@bcnumber3.com
